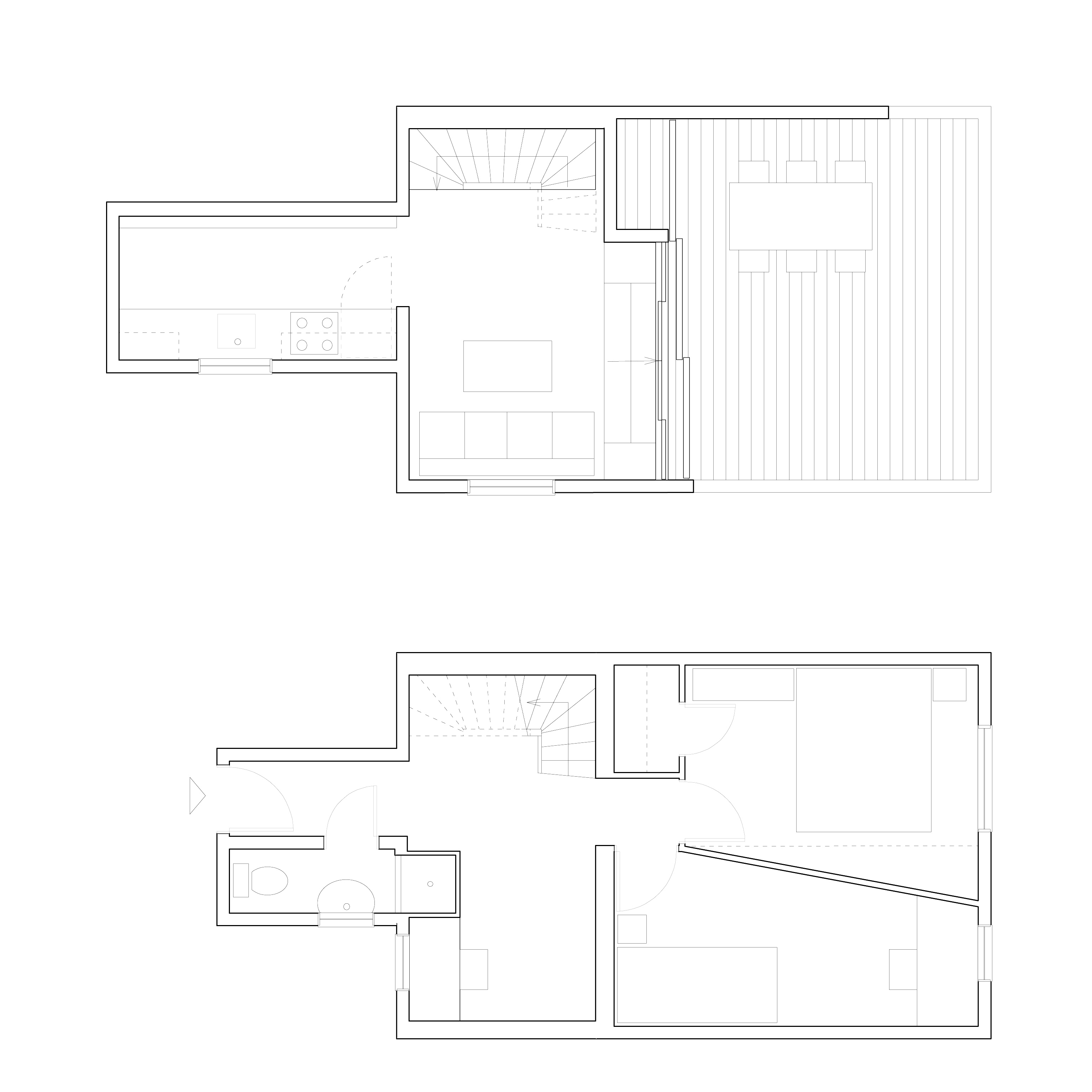
The renovation of this two-story apartment in Barcelona consists of the inversion of uses on each level to take better advantage of a roof terrace with panoramic views of the city. Originally, the lower floor contained the daytime spaces, and the upper floor a bedroom (reached by a ladder) opening onto the roof terrace. The renovation transformed the upstairs bedroom into a living-dining room with kitchen, and the original downstairs living-dining room and kitchen into two bedrooms and an office respectively. The sliding door opening between the living room and the roof terrace was enlarged, as was the floor opening between the two levels, where the ladder was replaced by a more comfortable stair.



Credits:
I am responsible for the demolition, framing, electrical, drywall, cabinetry, and wood work.
Structural consultant: Carmela Torró Micó
Steel work: Miguel Vila
Masonry and plumbing work: Ion “Juan” Veverita






1 Comment