[Project by ArqEstructura]
The Anti-Viral Urban Housing System is an architectural response to the Covid-19 pandemic that proposes improving hygiene without compromising the urban density that is necessary if cities are to consume less energy, land, and natural resources in the fight against climate change. It features a 100% outdoor circulation system in which entrance vestibules, stairwells, corridors and even elevators are ‘exteriorized’ to maximize hygiene. Every dwelling features, moreover, a generous private outdoor space situated between the outdoor access deck and the front door; an intermediary buffer similar to the front porches of traditional houses.
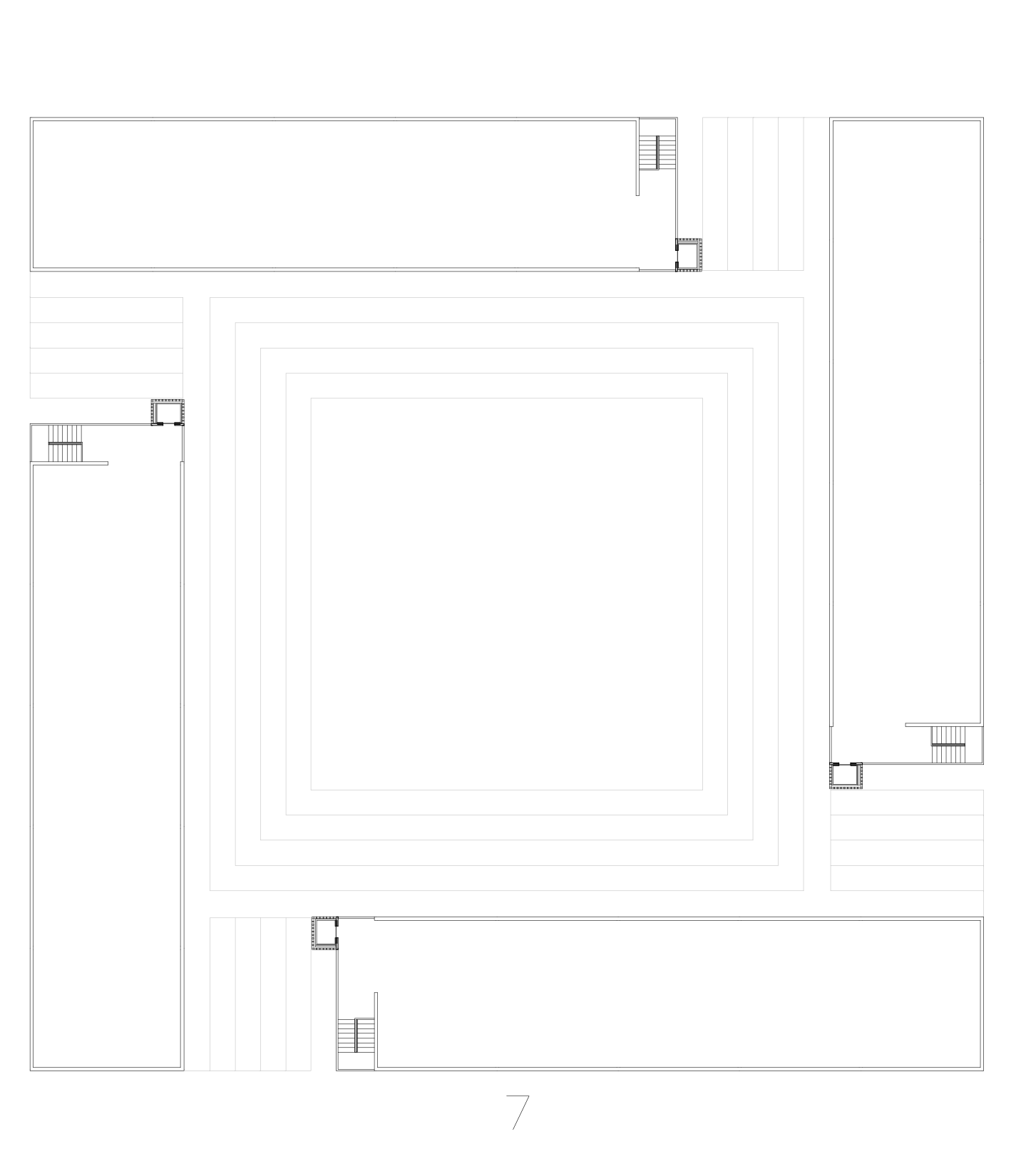
The urbanism of this housing system is a traditional European perimeter block around a communal courtyard. Openings in the perimeter block linking courtyard with surrounding streets perform as outdoor entrance lobbies from which outdoor stairs and elevators lead to outdoor access decks. The journey from street to dwelling is thereby entirely outdoors. The cross section of this housing system is characterized by a stepped profile on the courtyard-facing side, converting this central space into an amphitheater of sorts while enabling dwelling units of many different sizes to be included.
Differently sized units are stacked on different floor levels; from large double-height units at ground level to compact penthouse apartments at the very top. The ground floor units can be used either as commercial space, two-story townhouses, or as hybrid live-work units that combine both. The wide range of dwelling types and sizes ensures a mixture of social classes and a diversity of households.
The intermediary space of transition between the communal and the private realm, or between the exterior and the interior, becomes a central feature of every dwelling.
The system uses a basic building module 7.20m wide by a depth that varies depending on floor level. Three different interior distributions are available to choose from within any unit: either two compact dwellings 3.60m wide, or a single 7.20m wide dwelling in two different layouts. All dwellings (except ground floor units) are prefabricated using CLT (cross-laminated timber) in sub-modules 3.60m wide, a dimension that enables transportation by truck and placement by crane.
The Anti-Viral Housing System is adaptable to city blocks of varying size and geometry, including non-orthogonal blocks. An urban density of up to 450 dwelling units per hectare can be achieved using the most compact dwellings.

48 modules = max 544 dwellings + 32 commercial spaces + 57 trees. Maximum density: 340 dwelling units / ha. FAR = 2.9
The stepped profile of the Anti-viral Housing System, together with its exterior comunal circulation and its private porches, is ideal for incorporating vegetation. Apart from green end-walls and green roofs either active or passive, the porches enable private gardens while the communal courtyards, with their amphitheatrical form, are ideal places for trees to flourish naturally.

The Antiviral Urban Housing System is a mixed-use, medium-rise, high-density courtyard housing typology characterized by its fully outdoor circulation; an anti-viral architecture of intermediary buffer spaces in the form of courtyards and porches with plentiful light and air.










