
[Project by ArqEstructura]
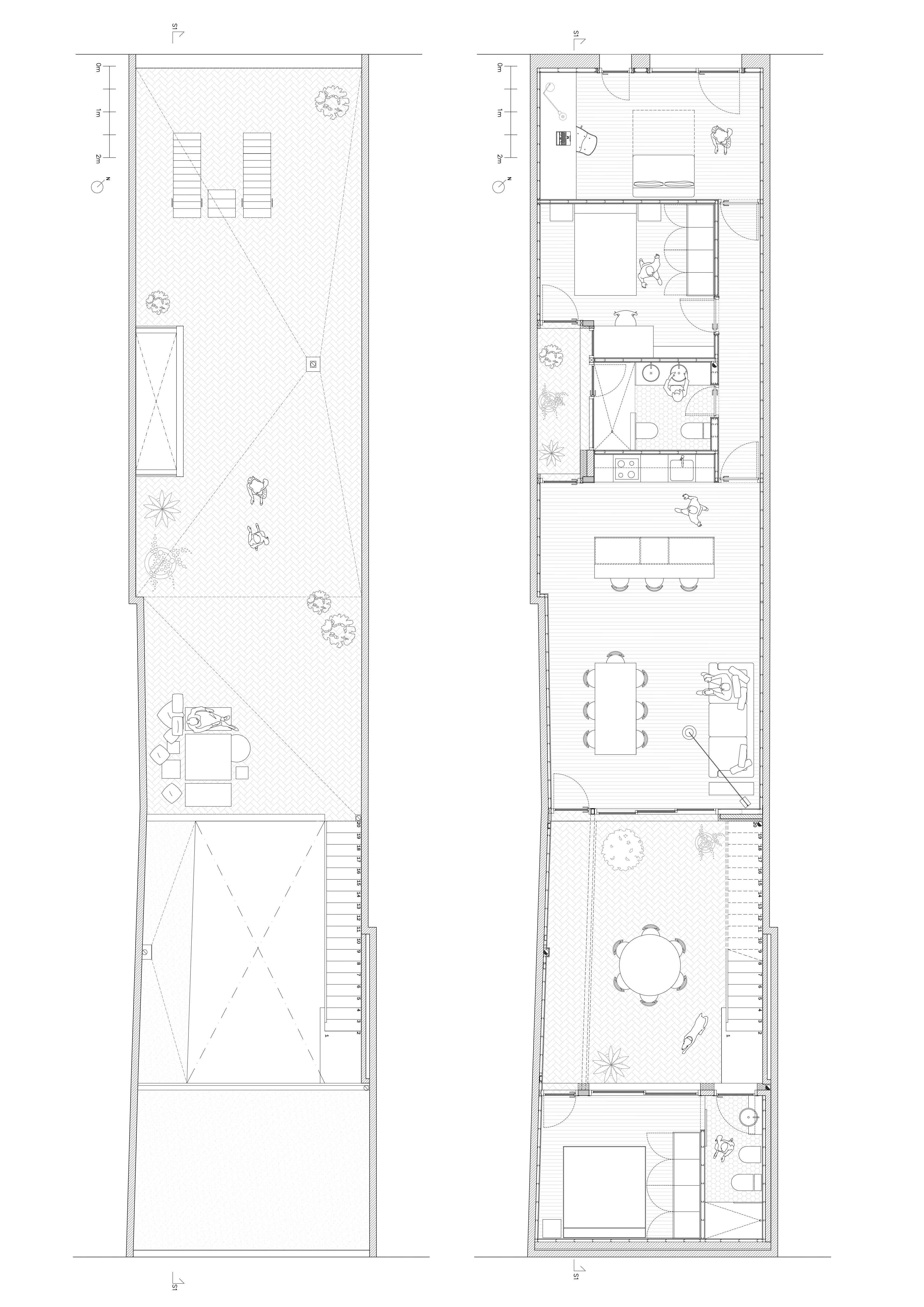
This laneway patio house in the Poblenou neighborhood of Barcelona was built within the envelope of an existing decrepit shed demolished afterwards. Only the street façade and one structural bay of the shed were maintained. Its narrow and deep proportion (approximately 5 x 25 m) and its situation between party walls required the introduction of two outdoor patios to provide natural light and ventilation to interior spaces that would otherwise be landlocked. These recreational patios become the main design feature of the house.

The interior spaces of the house follow a liner sequence beginning with a street-fronting home-office that doubles as an entry area and guest room, followed by a bedroom, a bathroom, and a kitchen facing onto a small patio, after which a living-dining room and second bedroom face a larger patio. A stair ascends from the larger patio to a roof terrace.
The glulam timber structure of the house, exposed in ceilings as an architectural feature, helps to minimize loads on the foundations and to maximize eco-efficiency. Thermochip sandwich panels with concrete slope-formation, an EPDM membrane beneath a concrete protective layer, and an elevated wooden deck complete the flat roof construction.
Architectural design: Rafael Gómez-Moriana, Carmela Torró Micó, Andrea Barrera.
Structural design and calculation: Carmela Torró Micó.
Contractor: Walden Eco-construction









