[Competition project by ArqEstructura with architect Angelo Roventa (Vienna), and economist Ignaz Furger (Zürich)]
[Awarded 2nd prize in BCN NYC Affordable Housing Challenge]
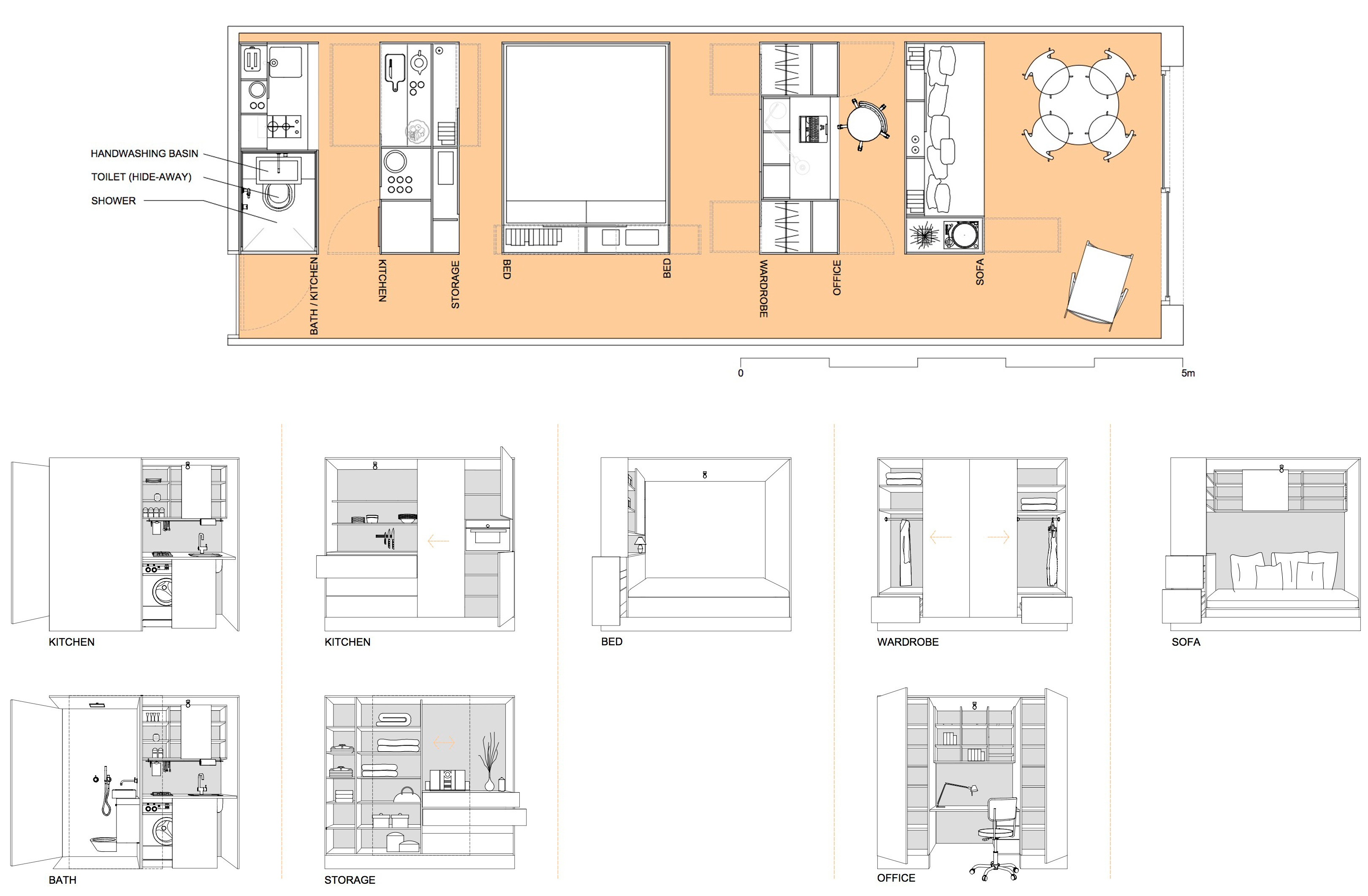
elastic_LIVING®, invented and patented in 2008 by Austrian architect Angelo Roventa, is a housing concept based on very compact, highly flexible apartments in which built-in furnishings are moved and spaces rearranged according to the use one wishes to make of the space at any given time of day. elastic_LIVING® uses the mechanism of compact mobile storage systems, replacing the storage cabinets with domestic furnishings that enable different rooms to be opened up.
The elastic_LIVING® apartment consists of a living room as well as five furniture modules of which four are movable to enable any one of three additional rooms to be opened up at a time: a kitchen, a bedroom, or a study. When all modules are bunched together, the living room becomes maximally enlarged. If the kitchen is not needed, its space can be closed and the bedroom or study opened up instead. Conversely, when the bedroom is not needed, it can be closed and the kitchen or study opened up instead. The living room and a compact bathroom near the entrance are the only spaces that are always accessible.
elastic_LIVING® furniture modules can be moved manually or electronically, gliding smoothly on wheels guided by a wall-mounted track.
The elastic_LIVING® apartment measures 36 m2, but when the maximum size of every room is added together the total is more than 60 m2. It thus provides the same functional capacities as a conventional apartment in nearly half the space, improving efficiency and affordability. elastic_LIVING® is ideally suited for cities with high urban density, high land costs, and high demand for affordable housing. Apartments are reasonably adaptable in width and depth to suit different building plots, including urban infill between party walls. A 600 m2 building floor plate fits up to 12 elastic_LIVING® apartments of 36 m2.

elastic_LIVING® apartments and modules can be prefabricated, enabling them to be mass-produced quickly and cheaply. Using engineered wood such as cross-laminated timber (CLT) and computer-aided manufacturing, prefab apartment shell dimensions can be adjusted for differently sized lots. elastic_LIVING® apartment interiors must be at least 3.30 m wide while maximum exterior width is limited by transport regulations (normally 4 m with special transport permit). Their ideal depth is 10 to 12 m.
elastic_LIVING® has to date been implemented in various architectural projects in Austria, and is currently being commercially implemented for the first time in Switzerland. Schlossbräu Social Housing, Dornbirn (Austria) contains a 50 m2 affordable apartment equipped with elastic_LIVING® modules. Hotel Kar, Oberlech Ski Resort, Lech am Arlberg (Austria), is a luxury hotel equipped with an elastic_LIVING® suite. Strohbox, Bregenzerwald (Austria), is an experimental elastic_LIVING® prototype apartment built of wood and straw bale inside a barn. The Jay in Adliswil (Zürich, Switzerland) involves the adaptive reuse of Swiss Re’s former offices into 96 apartments; half of which are equipped with a movable, modular furniture system based on Angelo Roventa’s elastic_LIVING® concept.








