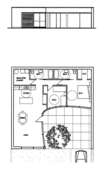
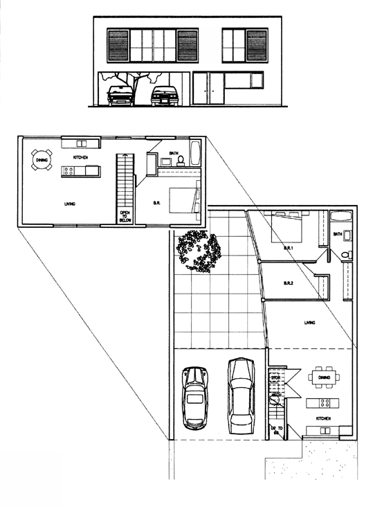
The CourtHome is a suburban house designed to attached at the sides and the rear, creating a more compact, energy-efficient and affordabe alternative to the detached, single-family suburban house. A private courtyard garden lies at the heart of a CourtHome, not unlike the impluvium of an ancient Roman Domus, while a driveway and front yard establish continuity with North American suburbia. The system is based on two standard lot sizes lined on three sides by party walls within which numerous typological variations are possible, including single- or double-story houses as well as pairs of stacked apartments.







