[Project by ArqEstructura]
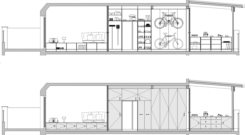
The renovation of this 1970s flat in Barcelona aims principally to reorganize the daytime spaces through the design of built-in furniture mainly for storage. The main piece runs along one of the flat’s party walls, unifying what were previously four separate rooms –entrance vestibule, kitchen, dining room, and living room– while at the same time meeting these spaces’ different storage needs. It replaces a corridor that previously skirted the kitchen, which is now open, larger, and contains more storage space, of which there seems to be never enough.

